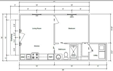
Shell includes all exterior wall and roof panels; Rafters/Trusses; Beams and pre-framed interior walls
Shell- W/ Exterior doors and impact windows
Shell includes all exterior wall and roof panels, roof rafters/trusses, beams and pre-framed interior walls
Shell w/Exterior doors and impact windows
Shell includes all exterior wall and roof panels, roof rafters/trusses, beams and pre-framed interior walls
Shell w/Exterior doors and impact windows
Shell includes all exterior wall and roof panels, roof rafters/trusses, beams and pre-framed interior walls
Add a footnote if this applies to your business

.jpg/:/rs=w:370,cg:true,m)





We use cookies to analyze website traffic and optimize your website experience. By accepting our use of cookies, your data will be aggregated with all other user data.